新聞資訊
新聞資訊
- 消防水炮系統維護4要點,無人廠房也安心
- 鋼鐵行業面臨哪些氣體安全威脅?來看解決方案
- 為什么應急照明配電箱要采用下出口進線方式?
- 電梯五方對講轎廂分機是否可替代轎廂消防對講電話?
- 老舊火災報警控制器的報廢要求是什么?
聯系我們
廠家:智淼消防檢測設備廠家
手機:15262554119
電話:4006-598-119
郵箱:18751140119@163.com
地址:江蘇省蘇州市常熟市黃河路275號城市之星119室
消防新聞
消防評估軟件解決方案——使用藍圖草繪模型
- 作者:消防安全評估設備
- 發布時間:2021-08-09 04:21:51
- 來源:http://m.wxqhbg.cn/
- 點擊:887
關鍵詞:人員疏散能力模擬分析軟件、Pathfinder人員疏散能力模擬分析軟件、消防安全評估軟件
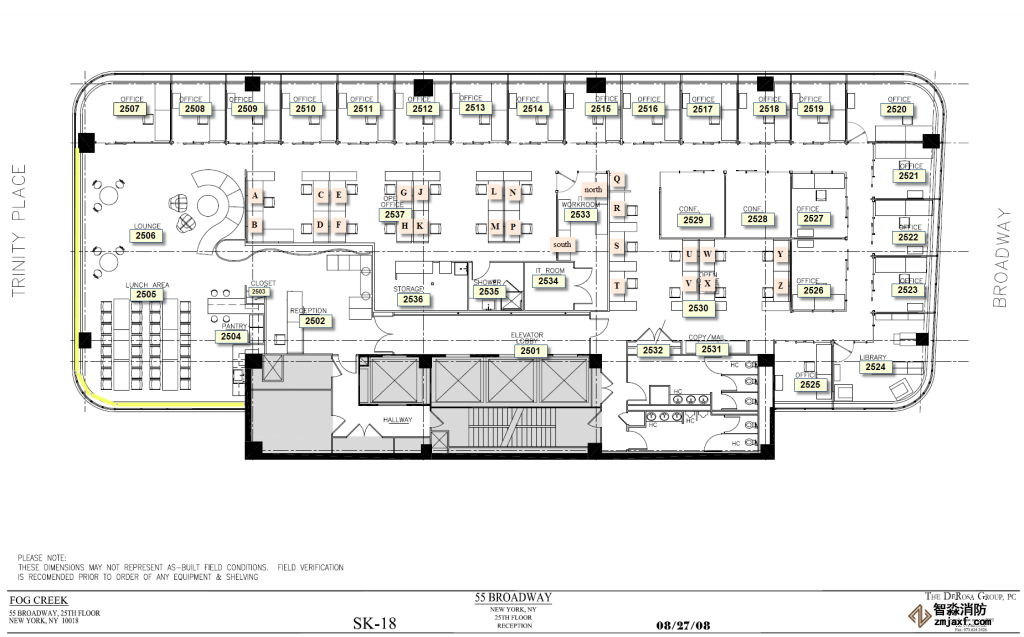
本示例演示如何將文件導入為背景圖像,然后通過草繪創建模型。所使用的圖像是Fog Creek的辦公空間(我們使用其FogBugz軟件跟蹤我們的錯誤報告),并顯示在其網站上。右鍵單擊圖1,然后將鏈接另存為,文件名為15floorplan.png。

圖1.辦公室幾何圖形
以下示例演示了如何導入jpg格式的藍圖,然后通過在藍圖上進行草圖繪制來創建Pathfinder疏散模型。
2.導入背景圖片
選擇英語測量:
- 在視圖菜單上,單擊單位,然后選擇EN。
我們將首先導入背景圖像以進行草繪:
- 在“ 查看”菜單上,取消選中“ 顯示捕捉網格”。這將使我們能夠在2D視圖中草繪而無需捕捉到網格。
- 在“ 模型”菜單上,單擊“ 添加背景圖像”。打開15floorplan.png文件。這將顯示“ 配置背景圖像”對話框。
- 我們首先為圖像定義“錨點”。輸入坐標型號X: 0.0 ft,型號Y: 0.0 ft和Z型: 0.0 ft。單擊選擇錨點按鈕,然后單擊圖像左下方的標記。
- 接下來,我們定義兩個點,這些點將用于縮放圖像幾何形狀和旋轉圖像(如果需要)。單擊選擇點A按鈕,然后單擊圖像左上方的十字標記。單擊選擇點B按鈕,然后單擊圖像右上角的十字標記。在區.A到B文本框中,鍵入166.0 ft。

圖2.在背景圖像上定義錨點。注意紅色的錨點

圖3.定義點A和B
3.繪制房間
現在,我們將在背景圖像上方繪制房間草圖。請記住,按住ALT鍵暫時會禁用對齊。同樣,在定義任何房間之后,您可以選擇房間,然后選擇定義形狀的任何點,然后拖動該點以調整形狀。
要繪制房間草圖:
-
在視圖工具欄中,單擊頂視圖
。 -
放大背景圖片的左上方,然后在左側工具欄中,點擊添加多邊形房間
。單擊以定義房間的外圍。使用鼠標右鍵單擊以繪制關閉多邊形的末行,如圖4所示。定義房間邊界時,您想要達到的精度取決于您的目標。通常,疏散分析的結果對房間尺寸的有效度相對不敏感。 - 選擇創建的房間后,75%在“ 不透明度”框中鍵入。這將使房間達到75%的實心度(25%的透明度),因此仍可以看到下面的背景圖像。
- 對相鄰的辦公室重復上述操作,如圖5所示。
-
現在,我們將復制2號辦公室。選擇2號辦公室,然后在工具工具欄中單擊復制/移動對象
。選擇復印模式。在份數框中,鍵入10。要定義每個副本的移動距離,請單擊描述辦公室的多邊形的右下角,然后單擊相鄰辦公室中的對應點,如圖6所示。第二次單擊將創建副本,如圖7所示。 - 您可能需要放大并調整辦公室的確切位置。選擇普通模式可移動辦公室而不進行復印。完成后,您的模型應類似于圖8。

圖4. 1號辦公室的草圖

圖5. 2號辦公室的草圖

圖6.準備復制2號辦公室

圖7.復制2號辦公室后

圖8.復制的辦公室
- 繼續繪制房間草圖。 圖9顯示了圍繞家具制作的草圖。在現有房間旁邊繪制第二個草圖時,光標將捕捉到現有房間坐標。按住CTRL鍵并選擇兩個房間,然后右鍵單擊并選擇“ 合并”。繼續此過程以完成草圖。
- 通過在現有房間上繪制一個新的多邊形房間并刪除該多邊形,可以在現有房間中切孔。
繼續草繪過程,直到為辦公室準備好全數房間為止。請注意,我們可以使墻壁隔開一定的厚度,以分隔房間。一段時間后,您的模型應類似于圖10。

圖9.在家具周圍繪制草圖,然后合并單獨的草圖以形成一個房間

圖10.定義了全數房間之后
請注意,有些辦公室被門隔開,因此這些房間尚未連接到主要的步行空間。
4.添加門
添加了門以將全數辦公室連接到開放的步行空間。
-
在視圖工具欄中,單擊頂視圖
。 -
雙擊添加新門
。默認情況下,門寬32英寸。在Max深度是Max厚度工具將用于搜索相鄰的空間。根據模型繪制的有效性,您可能需要增加值。 - 放大到模型的左上角,然后將鼠標移到門的位置,該工具將捕捉到相鄰的空間,如圖11所示。
- 繼續添加門,直到您的模型類似于圖12。

11.為模型添加一扇門

圖12.添加全數門之后
5.添加人員
我們將增加80名乘員,其中50人將放置在辦公室和開放空間中,而20人和10人將放置在兩個會議室中。
-
雙擊添加乘員
。單擊以將50個乘員安置在辦公室或開放空間中,如圖13所示。 - 要將與會者添加到會議室,請在左側會議室上單擊鼠標右鍵,然后在上下文菜單中單擊添加與會者。
- 對于放置,選擇隨機。在“ 按數字”框中,鍵入20。單擊OK關閉對話框并添加人員,如圖14所示。
- 重復此操作,將10位乘員添加到相鄰的會議室中。

圖13.將個人添加到模型

圖14.按房間添加人員
6.運行模擬
要運行模擬:
- 在文件菜單上,選擇保存。
- 將模型保存到計算機上的新文件夾并命名文件fog_creek.pth。
-
在工具欄上,單擊“運行模擬”
。
7.查看結果
模擬完成后,將顯示3D Pathfinder結果窗口。
要查看結果:
- 單擊播放按鈕。
- 隨時單擊“ 暫停”或“ 停止”按鈕。您可以拖動時間線來控制動畫。
- 要將乘員查看為人物,請單擊“ 停止”按鈕,在“ 代理”菜單上,單擊“ 顯示為人物”,然后單擊“ 播放”按鈕。您的仿真應該類似于圖15。

圖15.疏散過程中的結果
智淼消防檢測設備廠家:一二級消防檢測工具箱、消防安全評估軟件、消防維護保養檢測設備、消防電氣檢測儀器、防雷檢測裝置、消防監督檢查箱、火災現場勘查工具箱、人防工程檢測儀器,消防測試煙槍、多功能試水裝置、消防檢測設備儀器配置報價,消防檢測設備網站:http://m.wxqhbg.cn/;消防檢測儀器廠家服務熱線:4006-598-119






























蘇公網安備32058102002159號
客服QQ